機械テーブル製作例
テーブル:足枠製作

まず最初にこの枠を2組作ります。
2×4材使用(□ 38_×89_規格)長さ各種あり
全体図

斜めの補強材は1×4材使用(□ 19_×89_規格)長さ各種あり、50_コーススレッドで取付
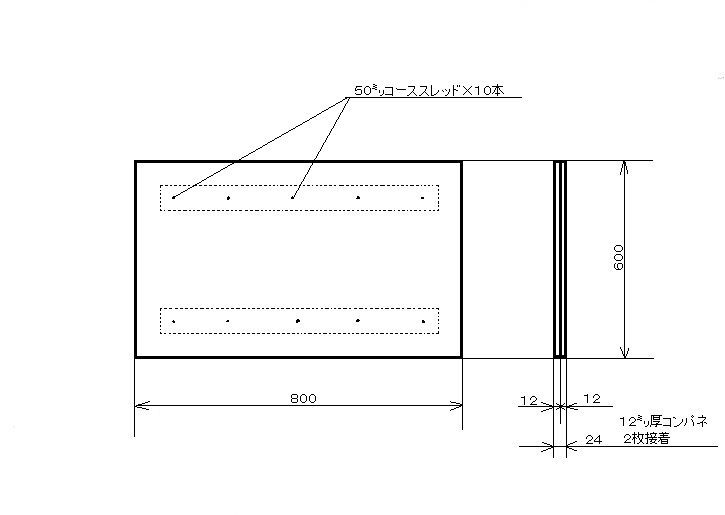
天板製作

コンパネ等の12_厚合板を2枚重ねにして接着。
又は、24_厚程度の板材を探す。
モーターなどの設置例、テーブルの高さの決め方
|
| この作成例で、縦枠の寸法の決め方 @1,020(測った高さ)−40(定数)=980(高さ基準) A980−248(定数)=732
・・・・・・・・・・・・・・・・・・・・・・・・・・・・・・・・・・・・・・・・・・・・・・・・・・・ ※(測った高さ)は柱などに巻き尺を張り付けて、 腕を直角にした時の高さを測る。 |
![]() |
|
「ツーバイ材」 各メーカー格付スタンプ
最近ではホームセンターで普通に「ツーバイフォー用建築材」が 建築規格のものでなく、単に寸法を「ツーバイ材の規格」に合わせているだけで、
「格付スタンプ」が押されている物は
良い「ツーバイ材」が手に入らない場合は、 |